Озеленение рестобара и лаундж-пространства: как зелень зонирует большой зал 200+ м²
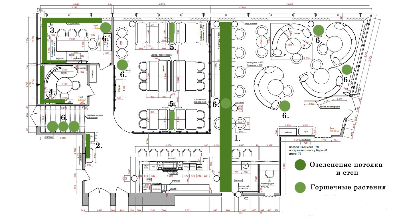
В этом проекте мы реализовали озеленение рестобара с лаундж-концепцией. Пространство — более 200 м²: большой общий зал и два закрытых VIP-зала. Формально это рестобар, но по сути — ресторан с возможностью заказать кальян, а значит, важны атмосфера, приватность и ощущение уюта даже в масштабном объёме.
Важно было не просто добавить растения, а встроить их в архитектуру, подчеркнув статус и атмосферу заведения.

Потолочное озеленение как главный акцент — 12 м² зелёной доминанты
Центральный элемент проекта — потолочная зона озеленения площадью 12 м².
Это длинная зелёная полоса, проходящая через зал и визуально разделяющая его на зоны.
Такое решение выполняет сразу несколько функций:
-
разделяет зоны без перегородок
-
добавляет глубину интерьеру
-
смягчает строгую геометрию потолка
-
усиливает ощущение камерности в большом объёме


Фитостена в свободной форме — поддержка естественности
В большом зале также реализована зона фитостены, но без чёткой геометрической рамки.
Мы сознательно отказались от строгого контура, чтобы сохранить ощущение природной пластики.
Свободная форма поддерживает лаундж-настроение и я выглядит естественно, будто «врастает» в пространство, а не наложена поверх него.

VIP-залы: продолжение идеи потолка и стены
В двух закрытых VIP-залах концепция озеленения получила развитие.
Здесь зелень украшает потолочные балки у окна и плавно переходит на стену.
Такой приём создаёт эффект обволакивания и усиливает приватность пространства.
Площади озеленения:
-
первый VIP-зал — 7,5 м²
-
второй VIP-зал — 4 м²
В камерных зонах зелень особенно важна: она смягчает акустику, делает пространство уютным и усиливает ощущение отделённости от общего зала.



Напольные кашпо как инструмент зонирования
В большом зале мы дополнительно использовали два крупных напольных кашпо за креслами.
Они работают как мягкие визуальные перегородки.
Растения позволяют:
-
разделить посадочные группы
-
создать приватность без утяжеления пространства
-
добавить глубину перспективе
Такое решение особенно актуально для заведений с кальянной концепцией, где важно сохранить ощущение уединённости внутри общего пространства.


Деревья как вертикальные акценты
Финальный элемент — 6 деревьев в напольных кашпо.
Они усиливают вертикаль интерьера и создают баланс между потолочной доминантой и посадочными зонами.
Деревья делают пространство более «живым» и добавляют ощущение статусности.

Итог проекта
В этом проекте озеленение рестобара стало не декором, а полноценным инструментом проектирования.
Мы создали систему, где:
-
потолочное озеленение задаёт ритм пространству
-
фитостена добавляет естественности
-
VIP-залы получают камерность через зелёные акценты
-
напольные кашпо и деревья формируют мягкое зонирование
В результате получился интерьер, в котором зелень работает на атмосферу, приватность и масштаб. Пространство ощущается живым, многослойным и продуманным — именно таким, каким должен быть современный ресторан с лаундж-настроением.

Планируете озеленение ресторана или рестобара?
Если вы на этапе проектирования или обновления заведения, важно продумывать озеленение ресторана как часть архитектурной концепции, а не как финальный декоративный штрих.
Мы помогаем:
-
разработать концепцию озеленения под формат заведения
-
грамотно зонировать пространство растениями
-
интегрировать потолочное и настенное озеленение в существующий интерьер
-
подобрать решения под бюджет и формат эксплуатации